Iznomā tirdzniecības telpas, Kaļķu iela, Vecrīga / 10840€

Atrašanās vieta:Rīga, Labais krasts, Vecrīga
Iela:Kaļķu
Ēkas tips:Pirmskara laika māja
Stāvs:1/6
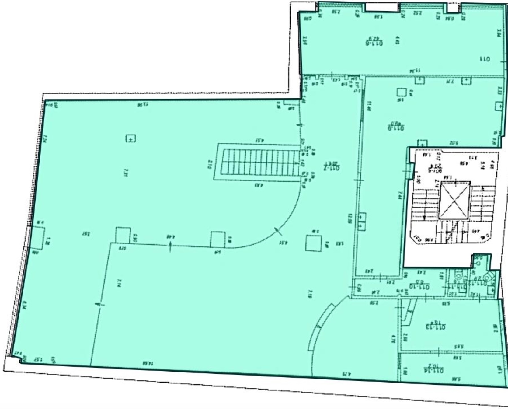
Platība:542 m²
Cena:10 840 € (20 €/m²)
Papildus maksājumi:apsaimniekošanas maksa (3.15 €/m²); komunālie maksājumi; PVN (21%)
Pieejams no:iŠodienas

Īpašuma apraksts

Tirdzniecības telpas Vecrīgā.

+ 1. stāvs tirdzniecības telpas 211 m2 platībā;
+ 2. stāvā tirdzniecības zāle, wc un palīgtelpas 433 m2 platībā;
+ Griestu augstums 3.5 līd 4m;
+ Pilsētas apkure;
+ Ventilācija un kondicionieris;
+ Lieli skatlogi;
+ Lielā gājēju plūsma.
Apsaimniekošanas maksa 3.15 EUR/m2.

    Īpašuma ID numurs: 60209

    Īpašums kartē

    • Bing karte
    • Bing bird eye
    • Openstreet Karte
    Edgars Regzdiņš
    Edgars Regzdiņš Aģents
    Sazināties ar aģentu:
    • Drukāt