Iznomā biroju, Brīvības iela, Centrs / 5000€

Atrašanās vieta:Rīga, Labais krasts, Centrs
Iela:Brīvības
Ēkas tips:Jaunais projekts
Telpas:5
Stāvs:4/6 (ir lifts)
Platība:500 m²
Cena:5 000 € (10 €/m²)
Papildus maksājumi:apsaimniekošanas maksa (2.95 €/m²); komunālie maksājumi; skaitītāju rādījumi; PVN (21%)
Pieejams no:iŠodienas

Īpašuma apraksts

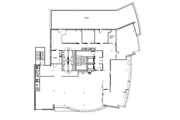
Iznomā atvērta tipa biroju, kas aizņem visu ēkas 4. stāvu.

Iekštelpu platība — 500 m², papildus pieejama plaša terase.

Birojs būs pieejams nomai no 2026. gada maija. Līdz tam telpās tiks veikts remonts, tādēļ tās iespējams pielāgot jaunā nomnieka vajadzībām.

Pašreizējais plānojums paredz plašu atvērta tipa darba zonu, 4 pārrunu telpas vai kabinetus, virtuves zonu, 4 WC telpas un terasi.

Biroju raksturo lieli panorāmas logi, atvērti industriālā jeb loft stila griesti un jauns LED apgaismojums.

Biroja nomniekam ir iespēja nomāt līdz 5 autostāvvietām ēkas pazemes stāvā (nomas maksa — 75 EUR + PVN mēnesī par vienu stāvvietu).

Ēkā pieejams Rimi pārtikas veikals, apsardzes sistēma un videonovērošana, administratore ēkas 1. stāva vestibilā, 2 lifti, Tet un Bite optiskais internets, pazemes autostāvvieta un velonovietne. Ēkas nomniekiem ir arī iespēja izvietot sava uzņēmuma izkārtni — gaismas kasti — uz ēkas fasādes.

Ēkā ir Rīgas Siltums apkure, centralizēta dzesēšanas sistēma ar iespēju nodrošināt nepieciešamo temperatūru katrā telpā, piespiedu ventilācija, atverami logi un piekļuve birojam ar magnētiskajām kartēm.

Papildus nomas maksai tiek piemērota maksa par ēkas uzturēšanu un apsaimniekošanu — 2.95 EUR/m² + PVN, kā arī maksa par komunālajiem pakalpojumiem.

    Īpašuma ID numurs: 66795

    Īpašums kartē

    Jānis Lipša
    Jānis Lipša Aģents
    Sazināties ar aģentu:
    • Drukāt

    Līdzīgi īpašumi