










Office for rent, Miera street, Centrs / 4226€
| Location: | Rīga, Labais krasts, Centrs |
|---|---|
| Street: | Miera |
| Building type: | New project |
| Premises: | 5 |
| Floor: | 7/8 (ir lifts) |
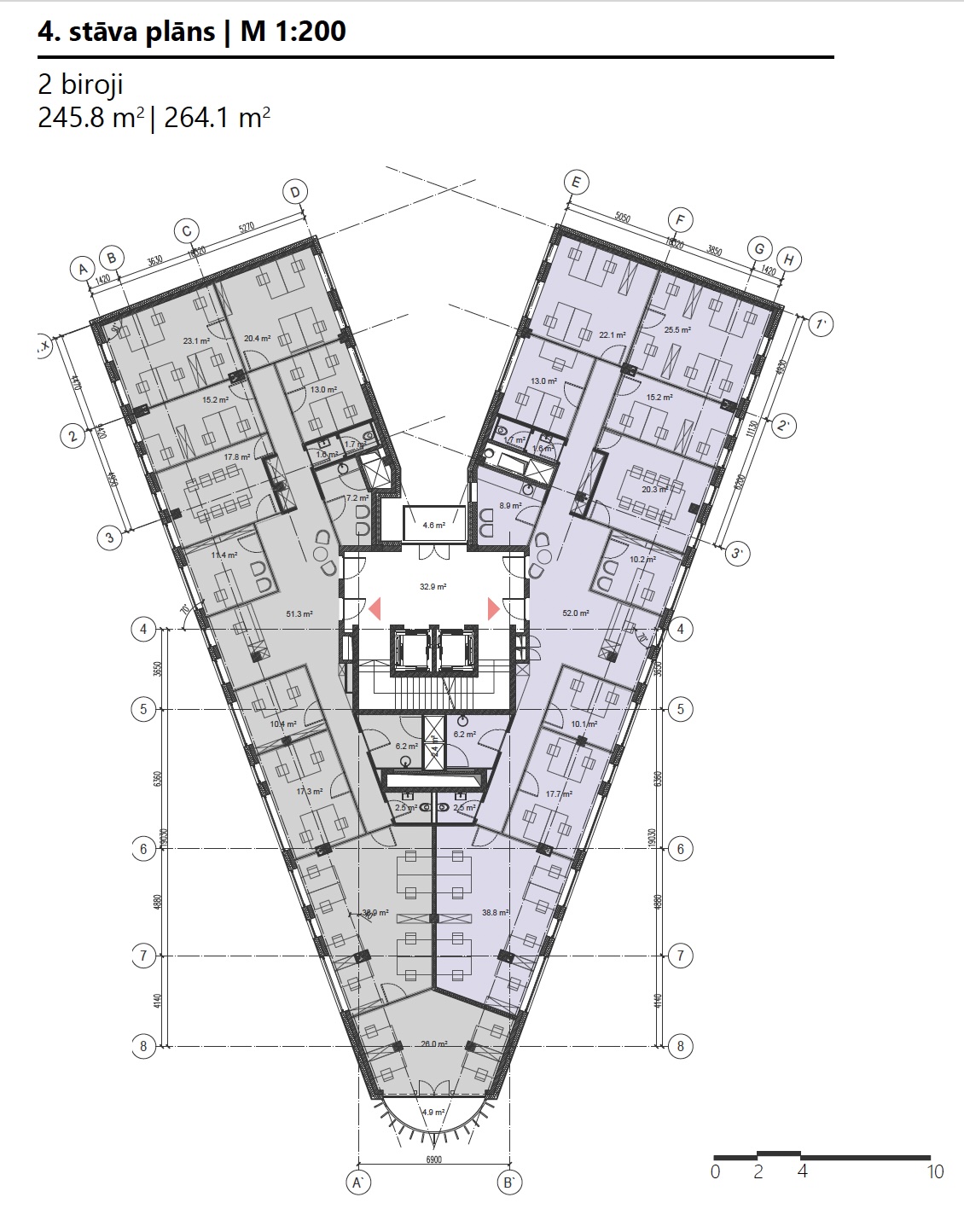
| Area: | 264.1 m² |
| Price: | 4 226 € (16 €/m²) |
| Additional costs: | management fee (2.50 €/m²); utility costs; meters; VAT (21%) |
| Available from:i | 01.10.2026 |
Property description
Office Spaces at the Intersection of Miera and Brīvības Streets — New Project at Miera iela 1
The premises will be available by the end of 2026.
The upcoming multifunctional building will be located in one of Riga’s most central and prominent areas — at the intersection of Miera and Brīvības Streets, next to Dailes Theatre.
The location ensures high pedestrian and car traffic, as well as excellent accessibility by public transport.
The building will offer modern retail and office spaces with functional layouts, high-quality finishes, and energy-efficient solutions.
The premises will be delivered fully finished.
Included:
• Ventilation system
• Cooling (air conditioning)
• All engineering communications
• Glass / plasterboard partition walls
• Fully equipped kitchen area
• WC with sanitary equipment
• Internal doors
• Electrical sockets and switches
• Floor covering
• Security system
• Fire safety system
• Access control system
The office will be fully operational — all you need to do is bring your own office furniture.
Maintenance fee: 2.50 EUR/m²
Utilities, electricity, and heating: according to meters
Not Included:
• Internal video surveillance system
• Blinds
• UPS system
• Any additional tenant-specific requirements not listed above
Project Advantages:
Strategic location in the very center of Riga
Modern architecture and engineering solutions
Flexible layouts to meet different business needs
High representativeness and visibility
Storage premises available
Underground parking with reserved spaces for tenants
Opportunity to place company branding on the façade and in elevators, ensuring excellent visibility
Contact us today to reserve your space!
- Finishing: high quality renovation and finishing, tile flooring, carpet flooring
- Equipment: built-in kitchen, built-in cupboards, shower
- Layout: open space layout
- Building description: entrance from the facade side
- Location: park nearby, convenient public transport, Top pedestrian walkway, intensive pedestrian traffic, intensive vehicle traffic
- Parking lot: paid (Rīgas Satiksme) parking on the street, paid parking in vicinity
- Area, type of retail premises: for medical company, beauty salon, shop
- Communications: autonomous boiler, optic internet available, city water supply, city sewage
- Security: access with electronic cards, alarm available, video surveillance
Object on the map
Other properties in this address
Similar properties

Office,
Baznīcas street, 261m²2 355 € (9 €/m²)
Office,
Uriekstes street, 269m²1 883 € (7 €/m²)
Office,
Satekles street, 320m²5 400 € (16.9 €/m²)
Office,
Briāna street, 247m²2 713 € (11 €/m²)
Office,
Valdemāra street, 340m²5 440 € (16 €/m²)
Office,
Republikas laukums street3 680 € (16 €/m²)
Office,
Barona street, 209m²627 € (3 €/m²)
Office,
Katrīnas dambis street2 760 € (12 €/m²)
Office,
Birznieka Upīša street3 300 € (11.9 €/m²)
Office,
Vīlandes street, 206m²1 442 € (7 €/m²)
Office,
Zemitāna street, 195m²2 147 € (11 €/m²)
Office,
Elizabetes street, 211m²1 650 € (7.8 €/m²)
Office,
Duntes street, 190m²2 565 € (13.5 €/m²)
Office,
Elizabetes street, 187m²1 122 € (6 €/m²)
Office,
Meierovica street, 202m²1 414 € (7 €/m²)
Office,
Blaumaņa street, 307m²2 150 € (7 €/m²)
Office,
Elijas street, 232m²1 974 € (8.5 €/m²)
Office,
Valdemāra street, 303m²2 427 € (8 €/m²)
Office,
Elijas street, 272m²2 317 € (8.5 €/m²)
Office,
Stabu street, 230m²2 300 € (10 €/m²)
Office,
Marijas street, 248m²3 844 € (15.5 €/m²)
Office,
Kr. Valdemāra street, 318m²1 590 € (5 €/m²)
Office,
Elizabetes street, 248m²2 484 € (10 €/m²)
Office,
Miera street, 245m²3 933 € (16 €/m²)
Office,
Dzirnavu street, 319m²3 199 € (10 €/m²)
Office,
Zemitāna street, 265m²3 710 € (14 €/m²)
Office,
Valdemāra street, 311m²2 490 € (8 €/m²)
Office,
Elizabetes street, 189m²1 300 € (6.9 €/m²)
Office,
Katrīnas street, 296m²2 521 € (8.5 €/m²)
Office,
Miera street, 219m²3 949 € (18 €/m²)
Office,
Šarlotes street, 270m²3 780 € (14 €/m²)
Office,
Marijas street, 189m²2 653 € (14 €/m²)
Office,
Zemitāna street, 191m²1 146 € (6 €/m²)
Office,
Zemitāna street, 300m²3 600 € (12 €/m²)
Office,
Strēlnieku street, 209m²3 030 € (14.5 €/m²)
Office,
Sporta street, 215m²3 440 € (16 €/m²)
Office,
Rūpniecības street, 250m²1 250 € (5 €/m²)
Office,
Krišjāņa Barona street2 000 € (10.2 €/m²)
Office,
Krišjāņa Valdemāra street2 000 € (9.5 €/m²)
Office,
Brīvības street, 322m²1 773 € (5.5 €/m²)
Office,
Valdemāra street, 185m²1 480 € (8 €/m²)
Office,
Elizabetes street, 199m²1 194 € (6 €/m²)
Office,
Elizabetes street, 208m²1 650 € (7.9 €/m²)
Office,
Lastādijas street, 328m²2 788 € (8.5 €/m²)
Office,
Ģertrūdes street, 288m²2 736 € (9.5 €/m²)
Office,
Čaka street, 305m²1 220 € (4 €/m²)
Office,
Republikas laukums street4 242 € (16.5 €/m²)
Office,
Zaļa street, 193m²2 702 € (14 €/m²)
Office,
Valdemāra street, 340m²5 440 € (16 €/m²)
Office,
Elizabetes street, 278m²2 780 € (10 €/m²)
Office,
Valdemāra street, 223m²3 568 € (16 €/m²)
Office,
Vesetas street, 300m²3 900 € (13 €/m²)
Office,
Vīlandes street, 202m²2 029 € (10 €/m²)
Office,
Elizabetes street, 240m²3 600 € (15 €/m²)
Office,
Krišjāņa Barona street5 171 € (17.5 €/m²)
Office,
Duntes street, 196m²2 548 € (13 €/m²)
Office,
Cēsu street, 198m²2 180 € (11 €/m²)














