










Office for rent, Miera street, Centrs / 3933€
| Location: | Rīga, Labais krasts, Centrs |
|---|---|
| Street: | Miera |
| Building type: | New project |
| Premises: | 5 |
| Floor: | 4/8 (ir lifts) |
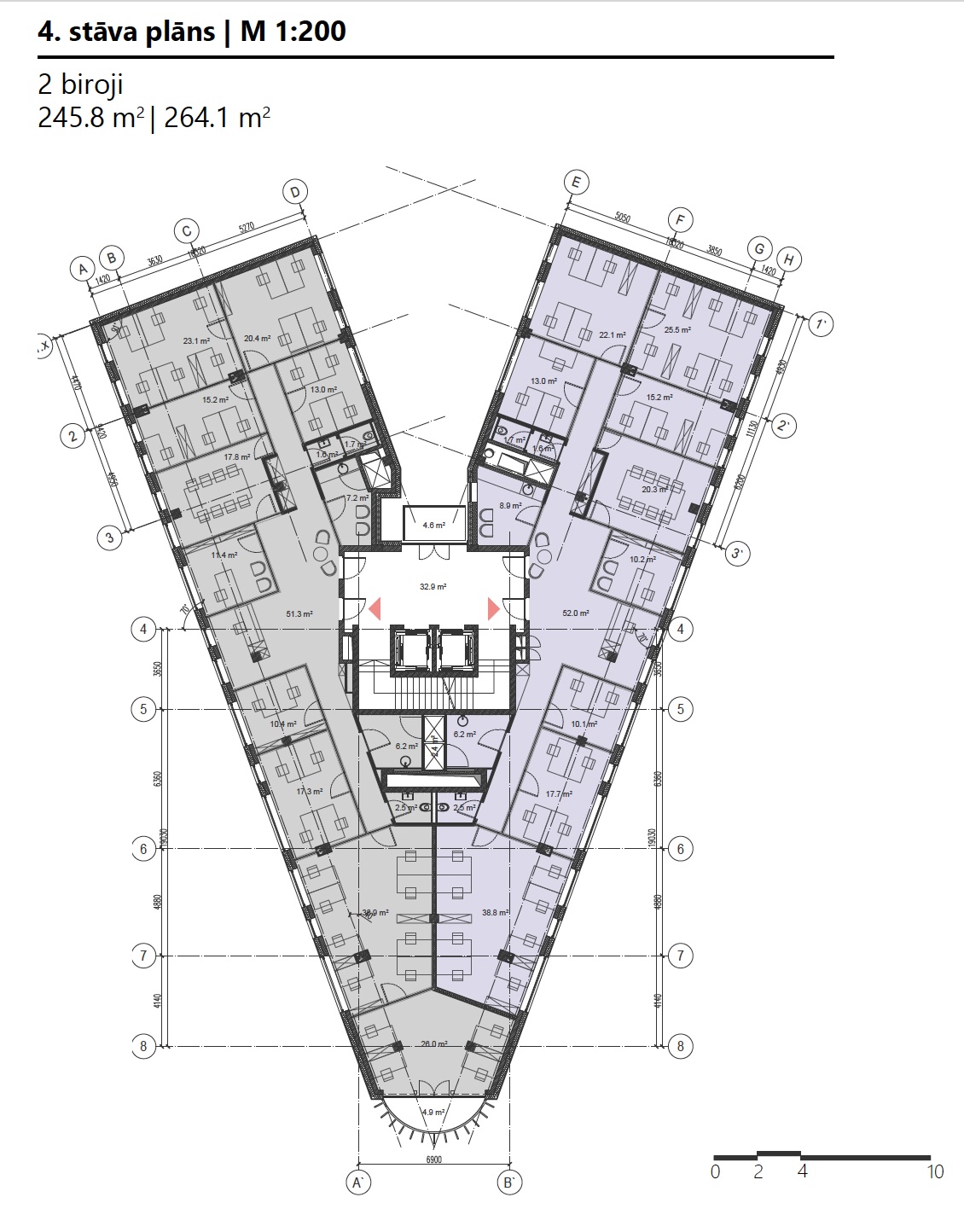
| Area: | 245.8 m² |
| Price: | 3 933 € (16 €/m²) |
| Additional costs: | management fee (2.50 €/m²); utility costs; meters; VAT (21%) |
| Available from:i | 01.10.2026 |
Property description
Office Spaces at the Intersection of Miera and Brīvības Streets — New Project at Miera iela 1
The premises will be available by the end of 2026.
The upcoming multifunctional building will be located in one of Riga’s most central and prominent areas — at the intersection of Miera and Brīvības Streets, next to Dailes Theatre.
The location ensures high pedestrian and car traffic, as well as excellent accessibility by public transport.
The building will offer modern retail and office spaces with functional layouts, high-quality finishes, and energy-efficient solutions.
The premises will be delivered fully finished.
Included:
• Ventilation system
• Cooling (air conditioning)
• All engineering communications
• Glass / plasterboard partition walls
• Fully equipped kitchen area
• WC with sanitary equipment
• Internal doors
• Electrical sockets and switches
• Floor covering
• Security system
• Fire safety system
• Access control system
The office will be fully operational — all you need to do is bring your own office furniture.
Maintenance fee: 2.50 EUR/m²
Utilities, electricity, and heating: according to meters
Not Included:
• Internal video surveillance system
• Blinds
• UPS system
• Any additional tenant-specific requirements not listed above
Project Advantages:
Strategic location in the very center of Riga
Modern architecture and engineering solutions
Flexible layouts to meet different business needs
High representativeness and visibility
Storage premises available
Underground parking with reserved spaces for tenants
Opportunity to place company branding on the façade and in elevators, ensuring excellent visibility
Contact us today to reserve your space!
- Finishing: high quality renovation and finishing, tile flooring, carpet flooring
- Equipment: built-in kitchen, built-in cupboards, shower
- Layout: open space layout
- Building description: entrance from the facade side
- Location: park nearby, convenient public transport, Top pedestrian walkway, intensive pedestrian traffic, intensive vehicle traffic
- Parking lot: paid (Rīgas Satiksme) parking on the street, paid parking in vicinity
- Area, type of retail premises: for medical company, beauty salon, shop
- Communications: autonomous boiler, optic internet available, city water supply, city sewage
- Security: access with electronic cards, alarm available, video surveillance
Object on the map
Other properties in this address
Similar properties

Office,
Krišjāņa Valdemāra street2 000 € (9.5 €/m²)
Office,
Zaļa street, 193m²2 702 € (14 €/m²)
Office,
Satekles street, 180m²3 000 € (16.7 €/m²)
Office,
Marijas street, 248m²3 844 € (15.5 €/m²)
Office,
Marijas street, 189m²2 653 € (14 €/m²)
Office,
Stabu street, 230m²2 300 € (10 €/m²)
Office,
Miera street, 264m²4 226 € (16 €/m²)
Office,
Barona street, 209m²627 € (3 €/m²)
Office,
Elizabetes street, 187m²1 122 € (6 €/m²)
Office,
Katrīnas dambis street2 760 € (12 €/m²)
Office,
Rūpniecības street, 250m²1 250 € (5 €/m²)
Office,
Duntes street, 190m²2 565 € (13.5 €/m²)
Office,
Baznīcas street, 261m²2 355 € (9 €/m²)
Office,
Katrīnas street, 175m²1 575 € (9 €/m²)
Office,
Šarlotes street, 270m²3 780 € (14 €/m²)
Office,
Katrīnas street, 296m²2 521 € (8.5 €/m²)
Office,
Ģertrūdes street, 180m²900 € (5 €/m²)
Office,
Valdemāra street, 311m²2 490 € (8 €/m²)
Office,
Republikas laukums street4 242 € (16.5 €/m²)
Office,
Elizabetes street, 278m²2 780 € (10 €/m²)
Office,
Elizabetes street, 248m²2 484 € (10 €/m²)
Office,
Elizabetes street, 199m²1 194 € (6 €/m²)
Office,
Strēlnieku street, 209m²3 030 € (14.5 €/m²)
Office,
Meierovica street, 202m²1 414 € (7 €/m²)
Office,
Tērbatas street, 180m²1 805 € (10 €/m²)
Office,
Birznieka Upīša street3 300 € (11.9 €/m²)
Office,
Matīsa street, 180m²1 400 € (7.8 €/m²)
Office,
Miera street, 219m²3 949 € (18 €/m²)
Office,
Zemitāna street, 300m²3 600 € (12 €/m²)
Office,
Vesetas street, 300m²3 900 € (13 €/m²)
Office,
Elizabetes street, 208m²1 650 € (7.9 €/m²)
Office,
Valdemāra street, 303m²2 427 € (8 €/m²)
Office,
Cēsu street, 198m²2 180 € (11 €/m²)
Office,
Zemitāna street, 191m²1 146 € (6 €/m²)
Office,
Ģertrūdes street, 288m²2 736 € (9.5 €/m²)
Office,
Tērbatas street, 180m²1 987 € (11 €/m²)
Office,
Elijas street, 232m²1 974 € (8.5 €/m²)
Office,
Čaka street, 305m²1 220 € (4 €/m²)
Office,
Sporta street, 215m²3 440 € (16 €/m²)
Office,
Vīlandes street, 202m²2 029 € (10 €/m²)
Office,
Krišjāņa Barona street5 171 € (17.5 €/m²)
Office,
Duntes street, 196m²2 548 € (13 €/m²)
Office,
Elijas street, 272m²2 317 € (8.5 €/m²)
Office,
Republikas laukums street3 680 € (16 €/m²)
Office,
Zemitāna street, 265m²3 710 € (14 €/m²)
Office,
Zemitāna street, 195m²2 147 € (11 €/m²)
Office,
Brīvības street, 178m²2 000 € (11.3 €/m²)
Office,
Elizabetes street, 189m²1 300 € (6.9 €/m²)
Office,
Blaumaņa street, 307m²2 150 € (7 €/m²)
Office,
Uriekstes street, 269m²1 883 € (7 €/m²)
Office,
Vīlandes street, 206m²1 442 € (7 €/m²)
Office,
Elizabetes street, 211m²1 650 € (7.8 €/m²)
Office,
Elizabetes street, 240m²3 600 € (15 €/m²)
Office,
Briāna street, 247m²2 713 € (11 €/m²)
Office,
Krišjāņa Barona street2 000 € (10.2 €/m²)
Office,
Valdemāra street, 185m²1 480 € (8 €/m²)
Office,
Valdemāra street, 182m²2 184 € (12 €/m²)
Office,
Kr. Valdemāra street, 318m²1 590 € (5 €/m²)
Office,
Valdemāra street, 223m²3 568 € (16 €/m²)














