Iznomā biroju, Elizabetes iela, Centrs / 2484€

Atrašanās vieta:Rīga, Labais krasts, Centrs
Iela:Elizabetes
Ēkas tips:Pirmskara laika māja
Mēbeles:Nemēbelēts
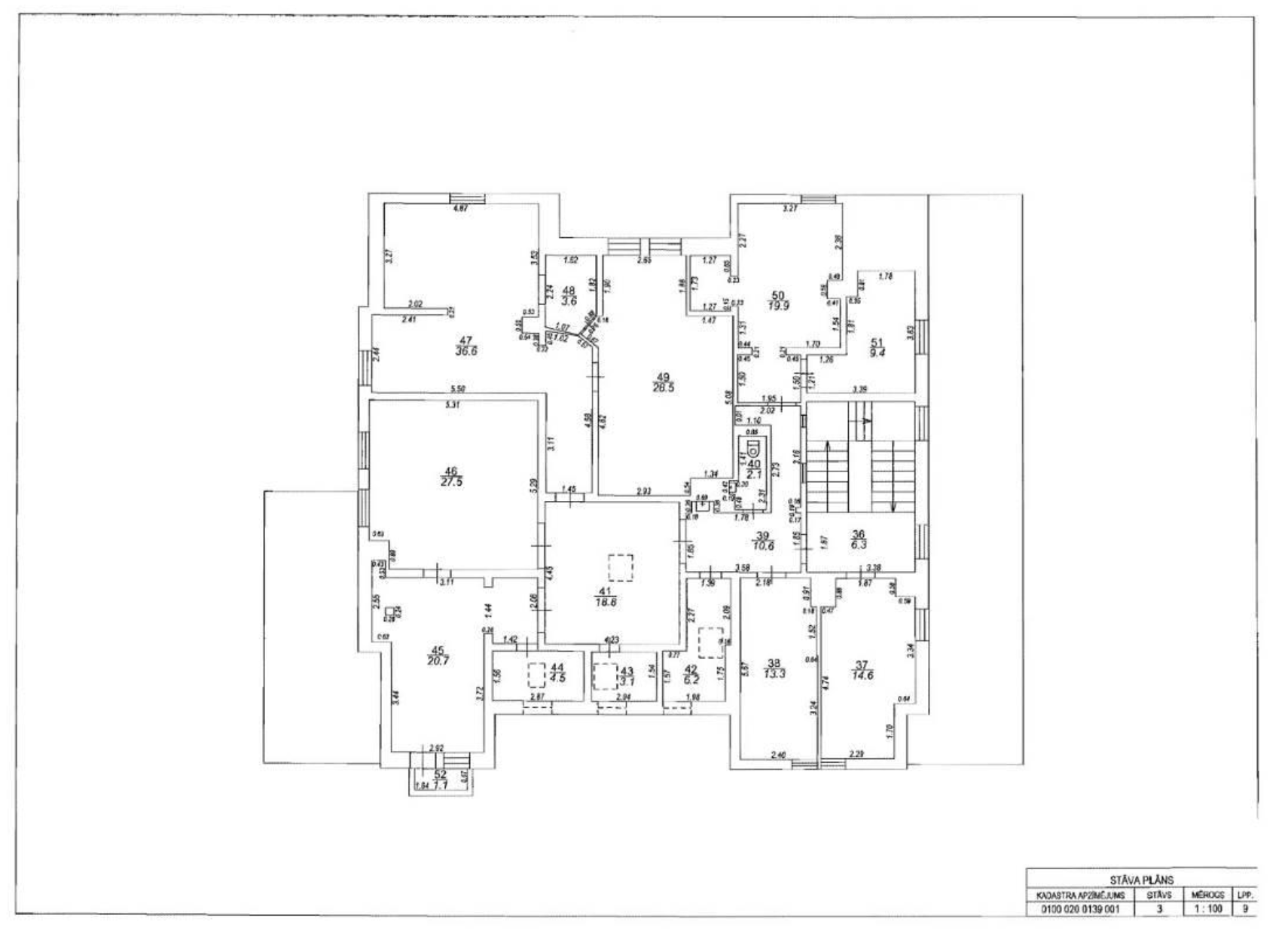
Telpas:16
Stāvs:3/3
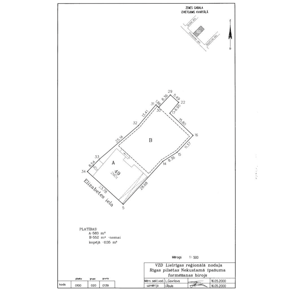
Platība:248.4 m²
Zemes platība:1135 m²
Cena:2 484 € (10 €/m²)
Papildus maksājumi:apsaimniekošanas maksa; komunālie maksājumi

Īpašuma apraksts

Iznomā telpas vēsturiskā namā Elizabetes ielā, pretī Esplanādes parkam.

Nomai tiek piedāvāts viss ēkas trešais stāvs ar atsevišķu ieeju no pagalma puses.

Telpām ir logi uz abām ēkas fasādēm, kas nodrošina bagātīgu dabisko apgaismojumu un patīkamu darba vidi.

Kopējā platība – 248.4 m², griestu augstums – līdz 3.15 m.

Plānojums ir daļēji izolēts un caurstaigājams, ļaujot telpas elastīgi pielāgot dažādām funkcijām un vajadzībām.

Telpas piemērotas biroja, tirdzniecības vai vēstniecības vajadzībām, kā arī iespējama to pielāgošana dzīvojamai platībai.

Ēka, celta 1870. gadā, atrodas vienā no Rīgas centrālākajām un prestižākajām vietām – Elizabetes ielā, tieši pretī Esplanādes parkam, nodrošinot izcilu redzamību un ērtu piekļuvi.
Telpas ir gaišas, plašas un saglabājušas vēsturisku šarmu.

Pieejamas autostāvvietas pagalmā par atsevišķu samaksu.

Papildu informācijai un apskates laikam – aicinām sazināties personīgi.

  • Plānojums: telpas gan izolētas gan caurstaigājamas
  • Ēkas raksturojums: pirmskara māja
  • Atrašanās vieta: tuvumā parks, tuvumā veikali un kafejnīcas, tuvumā skolas un bērnudārzi, ērta sabiedriskā transporta kustība, top gājēju iela, liela gājēju plūsma, liela autobraucēju plūsma
  • Autostāvvieta: stāvvieta pagalmā
  • Komunikācijas: autonoms apkures katls, pilsētas ūdens apgāde, pilsētas kanalizācija
Īpašuma ID numurs: 65913

Īpašums kartē

  • Bing karte
  • Bing bird eye
  • Openstreet Karte
Elīna Garda
Elīna Garda Aģents
Sazināties ar aģentu:
  • Drukāt

Līdzīgi īpašumi