Продают квартиру, Jūrmalas gatve 95, Imanta / 71000€

Местонахождение:Rīga, Kreisais krasts, Imanta
Улица:Jūrmalas gatve 95
Тип здания:602 серия
Мебель:С мебелью
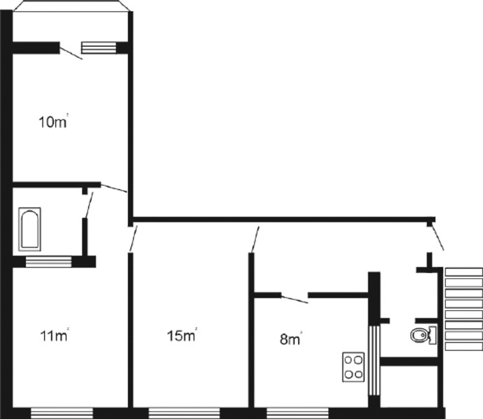
Количество комнат:3
Этаж:1/9 (ir lifts)
Площадь:61.8 м²
Цена:71 000 € (1 149.8 €/м²)

Описание объекта

A 3-room apartment for sale in Imanta.

The apartment has a convenient layout: a living room, kitchen, two bedrooms, a bathroom, and a separate toilet. Additional comfort is provided by a balcony.

The apartment is sold with the furniture and household appliances shown in the photos, allowing you to move in immediately without additional investments.

Parking space is available in the courtyard next to the building.

The building is managed by SIA “Rīgas namu pārvaldnieks”.
Utility bills:
August 2025 – EUR 150.80
December 2025 – EUR 274.60

Imanta is one of Riga’s residential districts with several practical advantages.

Main benefits of living in Imanta:
Quick access to Riga city center (by car and public transport),
Proximity to Riga International Airport – convenient for frequent travelers,
Easy access towards Jūrmala and major bypass roads,
Several public transport routes (buses, trams, train),
Nearby shopping centers, pharmacies, and fitness clubs,
Schools, kindergartens, medical institutions, as well as parks and children’s playgrounds.

For more information or to arrange a viewing of the apartment, please feel free to contact me.

    ID номер объекта: 66397

    Объект на карте

    • Карта Bing
    • Bing birds eye
    • Карта Openstreet
    Elizabete Katrīna Elere
    Elizabete Katrīna Elere Агент
    Связаться с агентом:
    • Распечатать