Investment property, Vienības gatve, Ziepniekkalns / 1100000€

Location:Rīga, Kreisais krasts, Ziepniekkalns
Street:Vienības gatve
Area:1275 m²
Land area:1943 m²
Price:1 100 000 € (862.8 €/m²)

Property description

Multifunctional office building in good condition and a convenient location.

The property offers several development opportunities:
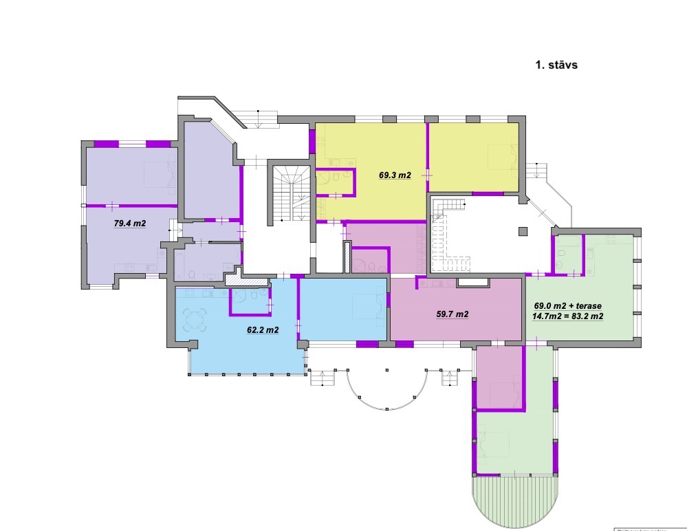
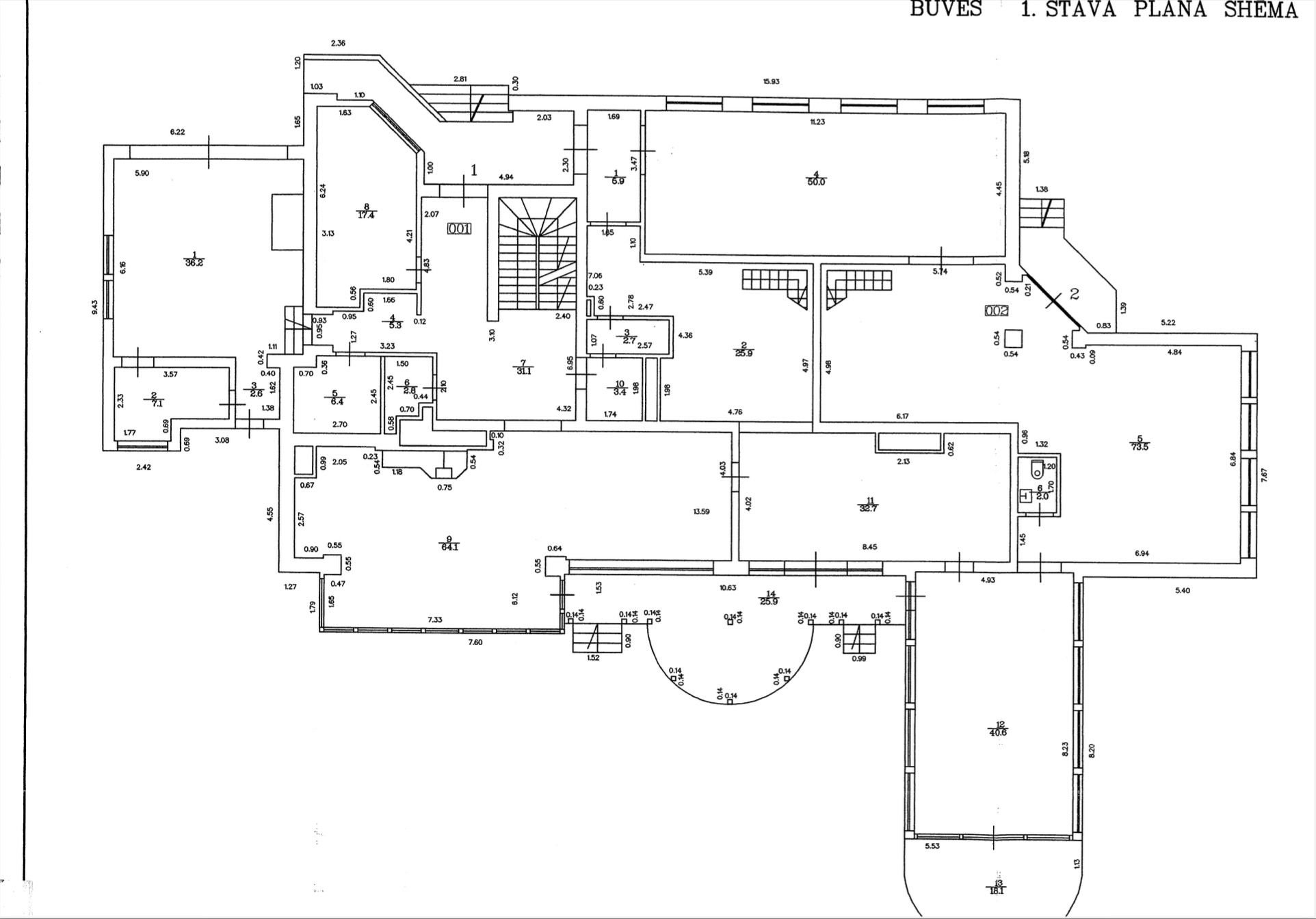
1. Construction of 10–12 apartments with well-designed layouts
(see draft project plans in the last images of the listing)
2. Use as an office building and generate income (current use)
3. Adapt for your own business needs

1st floor – 410 m²
2nd floor – 350 m²
3rd floor – 184 m²
Semi-basement – 287 m²
Terrace – 44 m²
Land area – 1,943 m²

Property description:

+ Solid construction: brick walls, reinforced concrete floors, metal roof;
+ City utilities, gas, and high-capacity electricity supply;
+ Building commissioned in 2005;
+ Officially registered as a two-apartment building (694 m² and 580 m²);
+ Convenient access via an asphalted road from Vienības gatve;
+ 20 parking spaces;
+ 600 m² green courtyard with lawn.

Zoning: JC2

    Property ID number: 65985

    Object on the map

    • Bing map
    • Bing bird eye
    • Openstreet Map
    Egils Skujiņš
    Egils Skujiņš Agent
    Contact the agent:
    • Print